Luxus Garten Maisonette Im Herz Von Bad Woerishofen
Solo anteprima - vedi tutte le foto dell'hotel
Vedi le 48 foto
Mostra hotel sulla mappa
Luxus Garten Maisonette Im Herz Von Bad Woerishofen
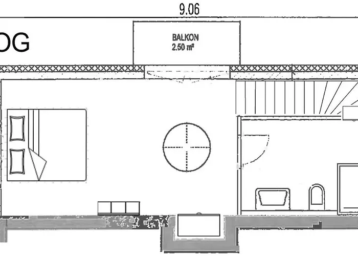
Alloggiando nell'appartamento di 65 m² Luxus Garten Maisonette Im Herz Von Bad Woerishofen gli ospiti possono rilassarsi sulla terrazza e si trova a soli 10 minuti a piedi da Sebastian Kneipp. Quest'appartamento dispone di Wi-Fi e di un parcheggio privato gratuito.
Il Fliegermuseum Bad Worishofen è situato a breve distanza dall'appartamento. Gli ospiti troveranno Kurpark Bad Wöerishofen a 750 metri dall'alloggio. L'appartamento Luxus Garten Maisonette Im Herz Von Bad Woerishofen si trova a una distanza di 3 km da Skyline Park e abbastanza vicino all'Allgäuer Fischmuseum.
Quest'appartamento dispone di un balcone e un salottino e di comfort come un impianto di climatizzazione. Un vantaggio per gli ospiti dell'appartamento Luxus Garten Maisonette Im Herz Von Bad Woerishofen è la presenza di asciugacapelli, accappatoi e teli da bagno nel bagno. Inoltre, troverete un bagno con WC separato e una doccia.
Questo alloggio offre servizi di self-catering, come un angolo cottura attrezzato e una zona pranzo all'aperto per la comodità degli ospiti. La stazione degli autobus Gaertner-/Erlenweg è a 400 metri.
Servizi
Top Servizi
- Wi-Fi
- Attività sportive
- Non fumatori
- Aria condizionata
- Animali non ammessi
Servizi
- Camere non fumatori
- Wi-Fi
- Parcheggio
- Check-in/check-out VIP
- Animali non ammessi
- Solo per adulti
- Bottega di barbiere
- Rivelatori di fumo
- Asciugatrice
- Pentolame/Utensili da cucina
- Zona pranzo all'aperto
- Ombrelloni
- Lettini prendisole
- Parco acquatico
- Terrazza solarium
- Giardino
- Campo da golf
- Bagno pubblico
- Negozi/Servizi commerciali
- Aria condizionata
- Riscaldamento
- Camere insonorizzate
- Area soggiorno
- Terrazza
- Mobili da giardino
- Set per la preparazione di tè e caffè
- Tavolo da pranzo
- Lavatrice
- Articoli da toeletta gratuiti
- TV a schermo piatto
Politica
Mappa
Recensioni
100% Recensioni Verificate
Domande più frequenti
- ❓C'è qualche luogo turistico vicino all'appartamento Luxus Garten Maisonette Im Herz Von Bad Woerishofen?Tra i luoghi d'interesse vicino all'appartamento Luxus Garten Maisonette Im Herz Von Bad Woerishofen ci sono Kurpark Bad Wöerishofen e l'Allgäuer Fischmuseum.
- ❓C'è un parcheggio nell'appartamento Luxus Garten Maisonette Im Herz Von Bad Woerishofen?Si, gli ospiti dell'appartamento Luxus Garten Maisonette Im Herz Von Bad Woerishofen possono parcheggiare le loro macchine in un parcheggio privato gratuito.
- ❓C'è qualche buon ristorante non lontano dall'appartamento Luxus Garten Maisonette Im Herz Von Bad Woerishofen?Tra i ristoranti vicino all'appartamento Luxus Garten Maisonette Im Herz Von Bad Woerishofen ci sono Hotel-Restaurant Sonnengarten e Angerhof Restaurant.
- ❓Il mio animale domestico può venire con me in questo alloggio?Purtroppo, questo alloggio non accetta animali.
- ❓Quali sono i servizi da bagno che possiamo aspettarci di trovare in questo appartamento?Questo appartamento dispone di bagni completi di asciugacapelli, accappatoi e teli da bagno.